东莞装修网

0371-58610011

装饰公司

  • 装饰公司
  • 家居建材
  • 设计师
  • 工长工人
  • 效果图
  • 搜文章
  • 搜产品
  • 搜视频

客厅大改造 简约60平旧房的华丽变身

发布日期:2017-01-07

房屋面积:建筑面积72平方、使用面积59平方

房屋常驻人口:我和我老公2口子

改造亮点1:增加了餐厅和会客区

改造亮点2:主卧次卧功能对调

改造亮点3:利用空间死角创造一个衣帽间

改造亮点4:改变卫生间门

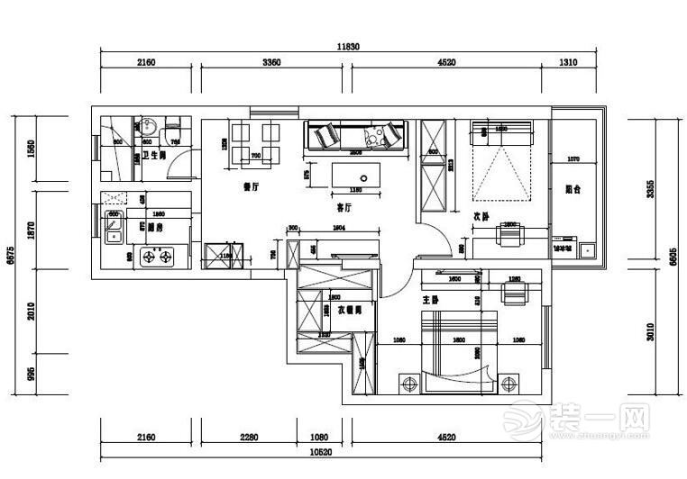
先来看一下平面图:

简约60平旧房的华丽变身

简约60平旧房的华丽改造案例

玄关放置了一个柜子,方便进门的时候放包包和其它钥匙之类的东西。

60平旧房的华丽改造案例

餐厅是我强烈要求增加的,这张大餐桌比之前的小餐桌好太多了。

简约60平旧房的华丽改造效果图

客厅使用一些具有艺术气息的壁画和纯色的沙发进行搭配,更有文艺气息。

简约60平旧房的华丽改造实景图

卧室里的两个床头柜是最大亮点,柜子和床品搭配都是纯色,而柜子的平面带有一点绿也可以起到点缀作用。

简约60平旧房的华丽改造实景图

合理改造了空间之后,终于让我有了一个梦寐以求的衣柜。

60平旧房的华丽改造案例

阳台空间不大,只是铺了地板,拜访了一个柜子,清新了不少。

简约60平旧房的华丽改造

厨房格局都进行了改变,这样布局更合理一些,比原有厨房更方便。

简约60平旧房改造案例

卫生间按了一个门,以后再也不用担心上班之前强用卫生间了。

虽然经过了千辛万苦,但是,我这简约60平旧房终于完成了华丽改造,为了这一刻在辛苦也是值得的。

上述内容为转载或编者观点,不代表装一网意见,不承担任何法律责任。如侵权请联系删除。
如何挑选装修公司,大数据来帮你!

免费设计在线报价

结合当地市场,大数据实时分析计算

手机版

小程序

公众号